
tricamere indipendente con giardino
Cassola (VI)
- Località : CASSOLA
- Giardino : Privato
- Bagni : 2
- Classe energetica : A4
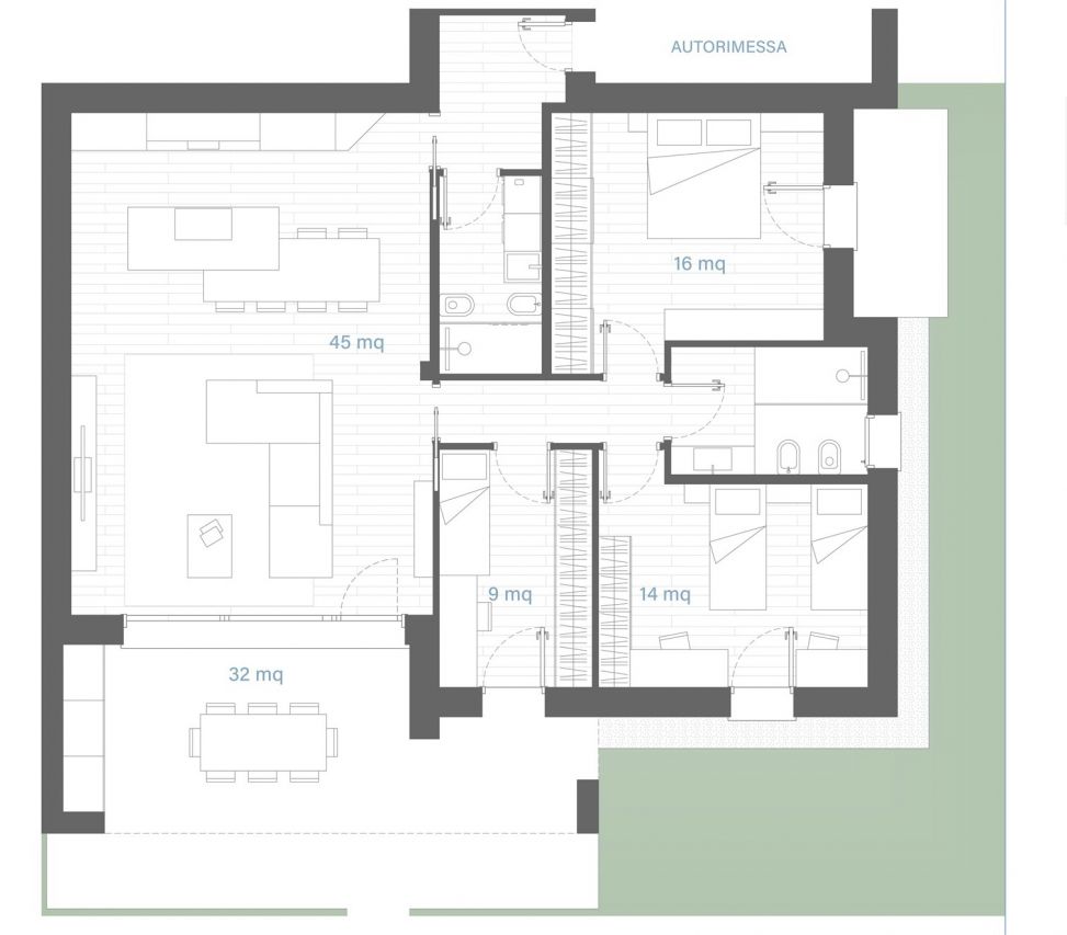
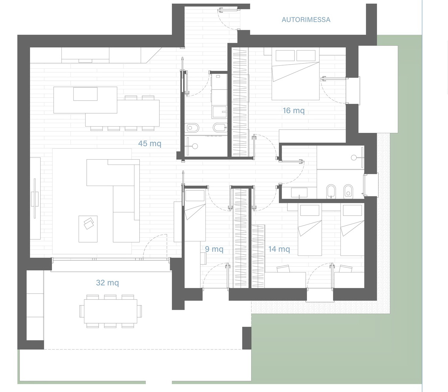
- Superficie : 127 mq
- Camere : 3
- Garage : 2 posti auto
Prezzo: EUR 350.000,00
Tricamere nuovo e in fase di costruzione, inserito in una zona tranquilla e verdeggiante, strategica per usufruire comodamente dei servizi dei Comuni di Rosà e Cassola e per la vicinanza a Bassano. Una facciata moderna ed elegante, un biglietto da visita del buongusto e di chi ci abita. E' dotato di ingresso indipendente, senza nessun collegamento col vano scale condominiale e di un giardino privato e di un portico di ca. 30 mq che permette di ampliare la zona giorno fino a 70mq per tutta la stagione calda; tre camere di cui una matrimoniale, una doppia ed una singola e di doppi servizi, uno dei quali con lavanderia. La dimensione delle superfici vetrate andranno ad accontentare tutti coloro che vogliono vivere in spazi ariosi e ben illuminati. Predisposto per clima, allarme e ventilazione meccanica. Garage doppio con ulteriore predisposizione lavanderia. Le immagini sono riferite all'unità immobiliare analoga già finita. Finiture personalizzabili. Contattaci per i dettagli e/o una visita in cantiere; troveremo insieme la giusta soluzione che stai cercando

